Nieruchomość niezabudowana - Józefów

Nieruchomość niezabudowana - Józefów
Rynek
Wtórny
Rodzaj
Działki budowlane
Powierzchnia
1828.00 m2
Opis
Burmistrz Miasta Józefowa
O g ł a s z a
Drugi Przetarg Ustny N i e o g r a n i c z o n y
na sprzedaż prawa własności
nieruchomości położonej w Józefowie k/Otwocka

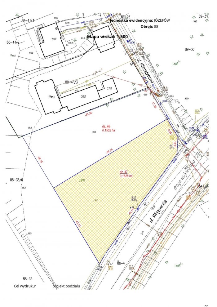
Adres (ulica) Wiązowska
Oznaczenie nieruchomości
Nr działki ( pow.m.kw) 47
Nr obrębu 88
Opis użytku , klasa LsVI
Nr księgi wieczystej WA1O/00092195/0
Powierzchnia 1 828 m2
Cena wywoławcza netto 1 500 000zł
Wadium 200 000zł

Uwaga:
Do ceny sprzedaży zostanie doliczony podatek od towarów i usług w wysokości23 % VAT

Przeznaczenie w planie zagospodarowania przestrzennego Obszar, na którym usytuowana jest zbywana nieruchomość objęty jest ustaleniami miejscowego planu zagospodarowania przestrzennego zatwierdzonego Uchwałą Rady Miasta Józefowa nr 69/IV/03 w dniu 9 maja 2003 r. w sprawie zatwierdzenia zmiany miejscowego planu zagospodarowania przestrzennego miasta Józefowa - etap III A, na obszarze oznaczonym symbolem RLz 37.
Przeznaczeniem podstawowym jednostki terenowej jest las z dopuszczeniem zabudowy mieszkaniowej jednorodzinnej, realizowanej w formie zabudowy wolnostojącej lub bliźniaczej.
Na terenie tym obowiązują następujące zasady zagospodarowania i kształtowania zabudowy:
1) ustala się minimalną wielkość nowotworzonej działki z przeznaczeniem pod zabudowę 1 budynkiem lub segmentem mieszkalnym, wynoszącą 1500 m²;
2) ustala się maksymalną wysokość zabudowy na 2 kondygnacje naziemne + poddasze użytkowe oraz na 11 metrów;
3) obowiązuje zakaz realizacji wolnostojących budynków towarzyszących o funkcjach gospodarczych, technicznych, garażowych; funkcje te należy realizować w formie pomieszczeń w budynkach mieszkalnych;
4) ustala się minimalny procentowy wskaźnik powierzchni biologicznie czynnej dla każdej z działek budowlanych wynoszący 80%;
5) na powierzchniach pozostawionych jako biologicznie czynne obowiązuje zachowanie obecnego, leśnego charakteru zieleni.
Działy III i IV wieczystej są wolne od wpisów, oraz nie toczy się w stosunku do nieruchomości postępowanie administracyjne dotyczące prawidłowości jej nabycia przez gminę.
Nieruchomość gruntowa niezabudowana, nieogrodzona i porośnięta drzewostanem sosnowym, o kształcie zbliżonym do trapezu. Od strony południowo – wschodniej działka przylega do drogi wojewódzkiej 721 (ul. Wiązowska), a od strony wschodniej do drogi gruntowej (oznaczonej w m.p.z.p. symbolem KD – drogi dojazdowe). Droga jest częściowo uregulowana na rzecz gminy Miasta Józefowa – w pasie o szerokości ok. 4,5 m, przyległym do zbywanej działki.
Przez działkę, wzdłuż południowo – wschodniej granicy przebiega sieć gazowa zaś wzdłuż wschodniej granicy przebiegają napowietrzne linie: energetyczna i telefoniczna.
Działka ma dostęp do infrastruktury technicznej: energetycznej, wodociągowej, kanalizacyjnej i gazowej.
Otoczenie nieruchomości stanowią tereny leśne oraz tereny z zabudową jednorodzinną.
Na nieruchomości mogą znajdować się sieci lub strefy ochronne sieci zlokalizowanych na nieruchomościach przyległych nieujawnione przez gestorów, których identyfikacji winien dokonać nabywca nieruchomości we własnym zakresie.
Wszelkie ograniczenia i utrudnienia w korzystaniu z nieruchomości lub koszty mogące wynikać dla nabywcy z istnienia nieujawnionych sieci, stanowią ryzyko nabywcy i nie mogą być traktowane jako wady nieruchomości.
Nabywca nieruchomości odpowiada za zapoznanie się ze stanem prawnym i faktycznym nieruchomości oraz jej aktualnym sposobem zagospodarowania, jej parametrami jak również możliwością przyszłego zagospodarowania. Rozpoznanie wszystkich warunków faktycznych i prawnych niezbędnych do planowanego przez nabywcę sposobu korzystania z nieruchomości, leży w całości po stronie nabywcy i stanowi jego ryzyko.
Obsługa komunikacyjna zbywanego terenu musi być uzgodniona z zarządcą drogi, który wydaje zgodę na budowę zjazdu w drodze decyzji administracyjnej, zgodnie z art. 29 ust. 1 ustawy z dnia 21 marca 1985 r. o drogach publicznych. Budowę zjazdu na własny koszt, bez prawa roszczeń do sprzedającego wykonuje
Numer
136475
Dodano
5 dni temu
Wyświetleń
9
Typ ogłoszenia
Prywatne

Ogłoszenie

Oferter od 2 lat
Wszelkie prawa zastrzeżone © 2025 OFERTER
created by NSF.pl